Last Revised: Monday, March 03, 2003

Floor Plans

Upper Floor - driveway provides level access to both floors

Lower Level


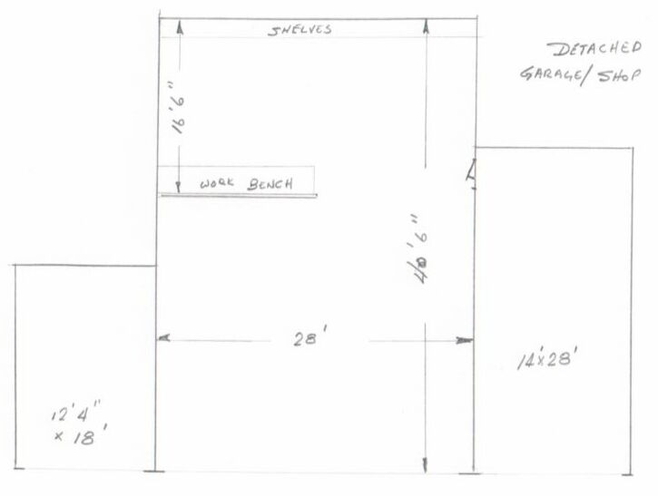
Detached Garage / Shop

Press the Back Button to return to previous page

EMAIL

Home Page